売買物件
取手市下高井中古戸建
【
中古
一戸建て
】・大和ハウス施工の軽量鉄骨造☆フルリフォーム済☆
・開放的な3方角地☆駐車場3台可☆
・稲戸井駅徒歩約15分♪
・お気軽にお問い合わせください!
| 価格 | 最寄駅 | 所在地 | 面積 | 築年月 |
|---|---|---|---|---|
関東鉄道常総線「稲戸井」駅 徒歩 15分 | 茨城県取手市下高井1087 | 土地/250.00㎡ 建物/127.89㎡ | 1988年10月 |
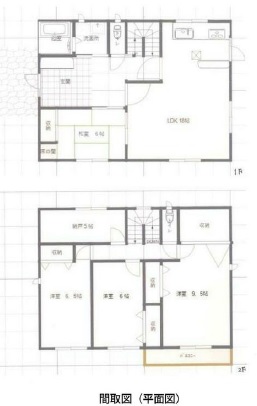
物件写真・間取り
物件概要
| 物件名 | 取手市下高井中古戸建 |
|---|
| 交通機関 | 関東鉄道常総線「稲戸井」駅 徒歩 15分 |
|---|
| 所在地 | 茨城県取手市下高井1087 |
|---|
| 土地権利 | 所有権 |
|---|
| 土地面積 | 250.00㎡ |
|---|
| 建物面積 | 127.89㎡ |
|---|
| 建物構造 | 軽量鉄骨 |
|---|
| 築年月 | 1988年10月 |
|---|
| 都市計画 | 調整区域 |
|---|
| 用途地域 | 無指定 |
|---|
| 建ぺい率 | 60% |
|---|
| 容積率 | 100% |
|---|
| 接道 |
|
|---|
| 地目 | 宅地 |
|---|
| 現況 | 空 |
|---|
| 引渡し | 即時 |
|---|
| 設備 | 上水道、浄化槽、都市ガス |
|---|
| 備考 | 道路幅員:北側4.0m |
|---|
| 取引態様 | 媒介 |
|---|
| 情報登録日 | 2025年10月13日 |
|---|
| 情報更新日 | 2025年10月13日 |
|---|




取手市内の戸建なら、取手市にあるハウスコレクションにおまかせ下さい!!
地域密着型の不動産屋です☆
お気軽にお電話下さい♪
フリーコール0120-28-1073
下記のご相談にも柔軟に対応できます。
(1)住宅ローンが他社では断られた。(年齢、年収、勤続年数などが理由で)
(2)借入れ金額が足らないけど、購入はあきらめられない。
(3)車のローンやカードローンがあり、難しいと言われた。
↑のような、状況でも当社独自のノウハウで住宅ローンを通すことが可能です。
あきらめる前に、ぜひ一度当社までご相談ください。